2" 300LB Y Type Strainer CF8M ASME B16.34 RF

2" 300LB Y Type Strainer CF8M ASME B16.34 RF

Key Specifications / Features

Model No.: Hits: 0

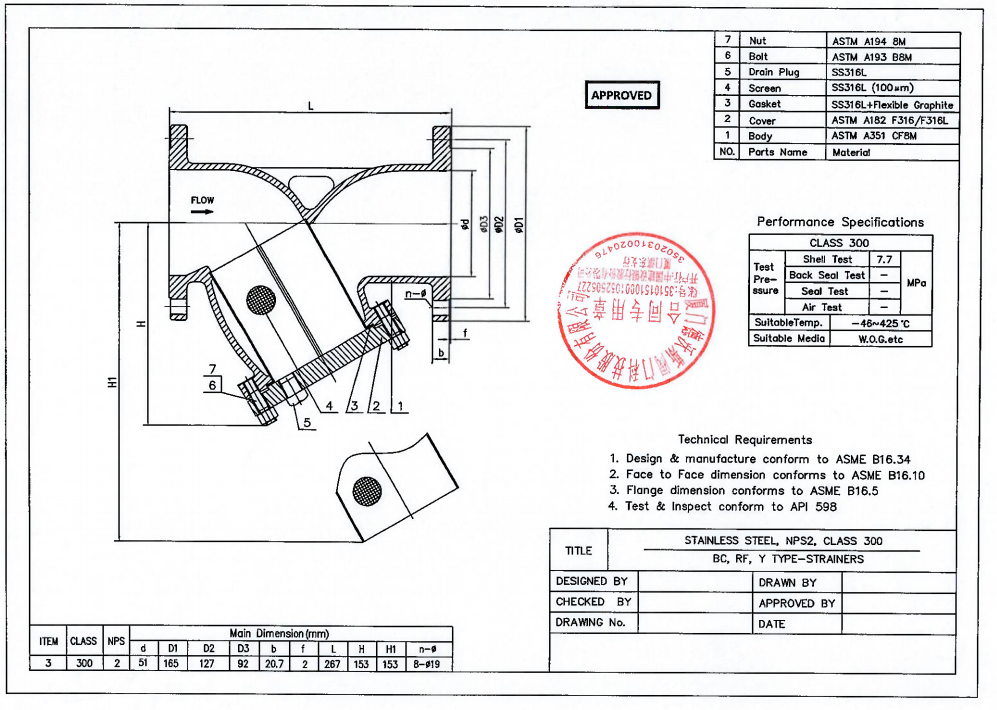
2" 300LB Y Type Strainer is made according to ASME B16.34 standard. The valve body is made of CF8M. It has the structural characteristics of Y-Type Strainer, 100 μm Mesh. Its connection mode is RF.
Request a quote

Detail Information

Product Parameters

Type Y Type Strainer
Size 2”
Pressure 300LB
Connection RF
Body Material ASTM A351 CF8M
Design Norm ASME B16.34
Face to face ASME B16.10
Flange dimension ASME B16.5
Test & Inspection Code API 598
Temperature -48 ~ 425°C
Applicable Medium Water, Oil and Gas

Features

1.CF8M stainless steel body offers excellent corrosion resistance for harsh fluid systems.
2.Y-type design effectively removes debris while maintaining smooth flow in high-pressure pipelines.

Technical Drawing

Y Type Strainer

Dimension Checking

Y Type Strainer

Pressure Testing

Y Type Strainer

Spectrum

Y Type Strainer

Nameplate & Packing

Y Type Strainer
 

Keywords of 2" 300LB Y Type Strainer CF8M ASME B16.34 RF

Comment Form

Nickname*:
E-mail*:
Rate*:
Comments*:

Similar Products