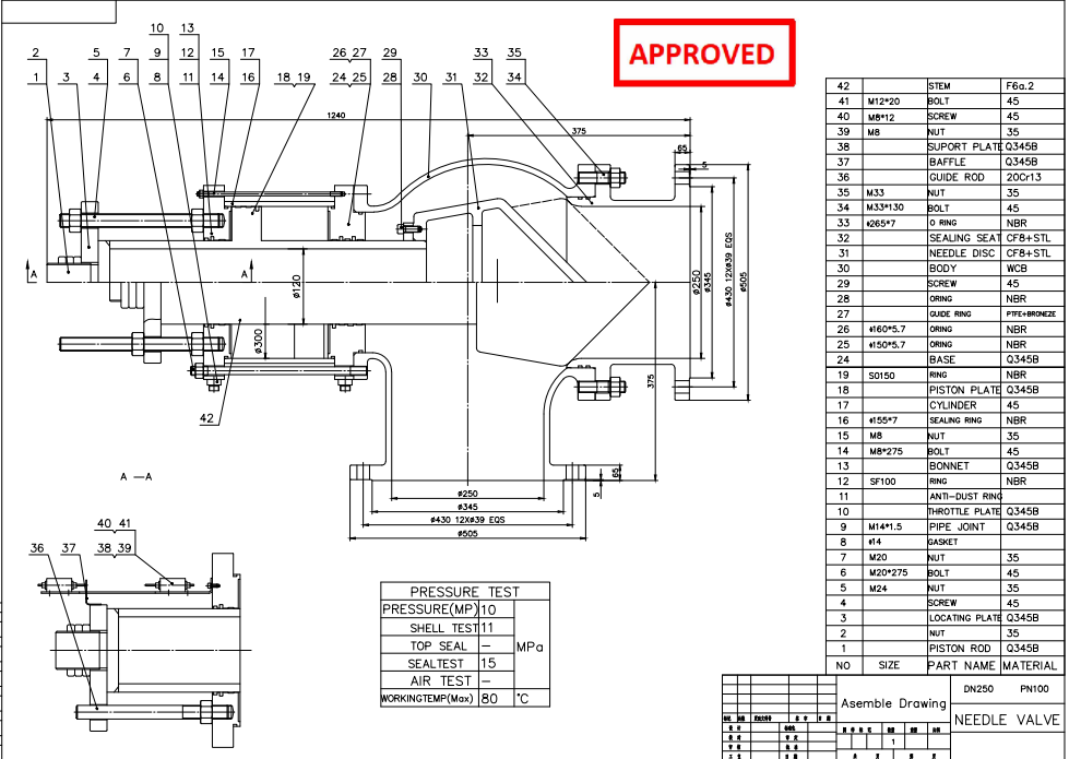
DN250 PN100 Needle Globe Valve WCB RF With Hydraulic Actuator
Key Specifications / Features
Model No.: Hits: 0
DN250 PN100 Needle Globe Valve is made according to Drawing standard. The valve body is made of WCB. It has the structural characteristics of Equipped with Hydraulic Actuator. Its connection mode is RF. The valve is operated by Hydraulic Actuated.
Request a quote
Detail Information
Product Description
| Type |
Needle Globe Valve |
| Size |
DN250 |
| Pressure |
PN100 |
| Connection |
RF |
| Body Material |
WCB |
| Design Norm |
According to Drawing |
| Test & Inspection Code |
API 598 |
| Temperature |
10 ~ 80°C |
| Applicable Medium |
Water, Oil and Gas |
Features
1.Engineered in WCB material with a robust -type design, this needle globe valve ensures high strength and durability under extreme conditions.
2.Equipped with a hydraulic actuator and RF (Raised Face) flange, it allows precise flow control and efficient automated operation.
Technical Drawing
Dimension Checking
Pressure Testing
Painting
Nameplate & Packing
Inspection Report




Keywords of DN250 PN100 Needle Globe Valve WCB RF With Hydraulic Actuator
Comment Form
Similar Products